ACP5: TEJIDOS Y MANUALES

Creada el 4 de Noviembre de 2025 a las 08:42 por Pablo_postigo

Proyecto: Urbanismo 1_2025 / Urban Design 1_2025
Tema: 2.5. aproximaciones. tejidos-manuales | APPROACHES. TISSUES-HANDBOOKS
Coordinadores: abarca ferospe falvarez

Valoración general

0/5 (0 votaciones)

Valoración de coordinadores

0/5 (0 votaciones)

Descripción

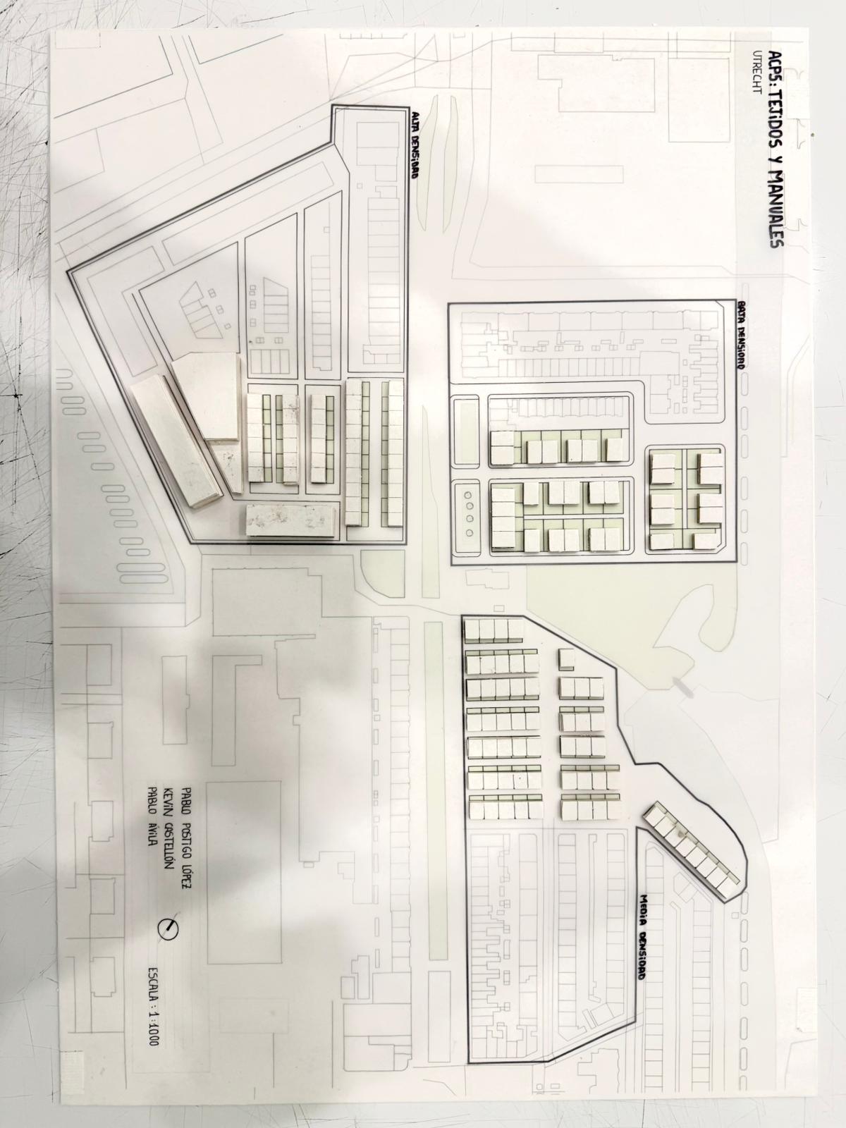
Métrica de densidades del barrio Hoheluft en Hamburgo (Alemania). Propuesta de implantación de manzanas de baja, media y alta densidad en manzana designada de Utrecht.

Panel

Tejidos y manuales

Descargar fichero

Estudio de implantación de manzanas de baja, media y alta densidad en manzana designada de Utrecht.





Tejidos y manuales

Descargar fichero

Estudio de implantación de manzanas de baja, media y alta densidad en manzana designada de Utrecht.

Tejidos y manuales




Tejidos y manuales

Descargar fichero

Estudio de implantación de manzanas de baja, media y alta densidad en manzana designada de Utrecht.





Comentarios

abarca 18 de Diciembre de 2025 a las 08:16

L no se mide en metros. Subir el trabajo de tejidos con mayor resolución. El tipo plurifamiliar debería definirse mejor. La tipología no parece ser la óptima.


Accede o regístrate para comentar y puntuar la entrada.