2.3. TRAZADOS Y ARQUITECTURA. BURDEOS.

Creada el 9 de Noviembre de 2025 a las 16:20 por anwarab355 - carloscalvo - silvia.cdr

Proyecto: Urbanismo 1_2025 / Urban Design 1_2025
Tema: 2.3. aproximaciones. trazados-arquitecturas | APPROACHES. LAYOUTS-ARCHITECTURES
Coordinadores: abarca ferospe falvarez

Valoración general

0/5 (0 votaciones)

Valoración de coordinadores

0/5 (0 votaciones)

Descripción

Análisis de los trazados de la ciudad y las tipologías de viviendas.

Panel

Trazados ciudad

Descargar fichero

El trazado de las vías de Burdeos se configura a lo largo de su evolución histórica. A partir de ello, la ciudad contó con tres murallas sucesivas. La primera de ellas delimitaba el casco histórico, desde el cual partían tres cours que conectaban con el exterior y se ramificaban de manera radial. La segunda muralla rodeaba estas salidas de la ciudad y, con el tiempo, se transformó en una de las principales avenidas (cours). Finalmente, la tercera muralla se dispuso nuevamente en torno al perímetro exterior y también acabaría convirtiéndose en parte del sistema de cours. De este modo, las calles secundarias surgieron como ramificaciones radiales derivadas de estas grandes vías que rodeaban el casco histórico. A partir de ahí, la ciudad fue creciendo hacia el exterior rompiendo con esa distribución radial y amontonándose por necesidad.

Trazados ciudad




Tipologías ventana

Descargar fichero

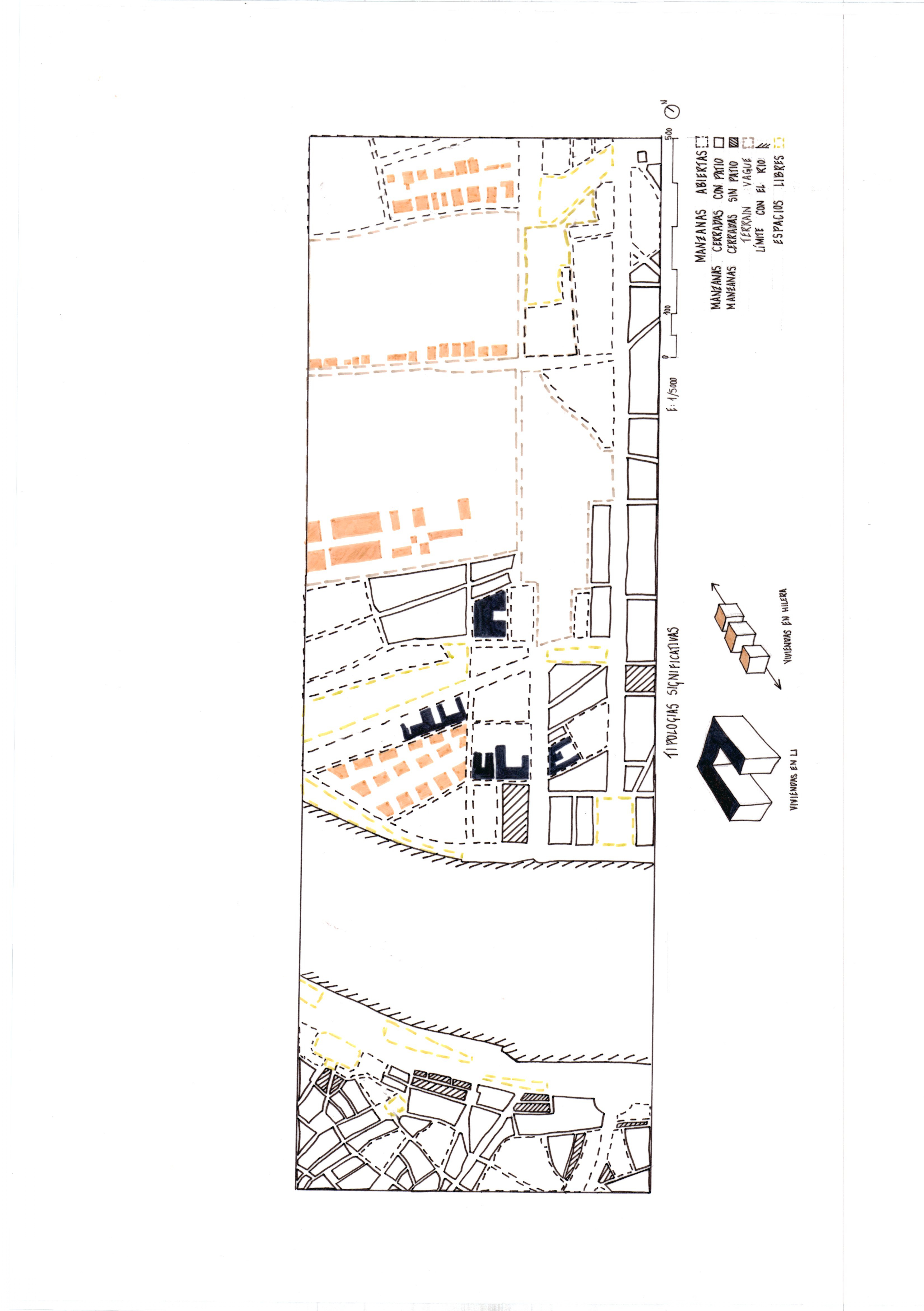
En este plano podemos observar varios aspectos de Burdeos. Partiendo de lo general, lo más representativo es la diferencia de densidad que se forma entre las dos zonas separadas por el río. Mientras que en la parte izquierda se aprecia una gran densidad de manzanas con edificios, en el lado derecho predominan las manzanas abiertas y extensas áreas marcadas por los terrain vagues, zonas caracterizadas por el deterioro y la falta de urbanización. También podemos notar que predomina la construcción sobre manzanas cerradas con patios interiores, especialmente en la parte histórica de la ciudad. En cuanto a la tipología de edificaciones, en la zona más moderna se repiten dos tipos principales. Por un lado, las viviendas en U, que pueden diferenciarse según la orientación de sus patios: dos de ellas se abren hacia la calle y un espacio público, mientras que las restantes orientan el patio rectangular hacia otras edificaciones, disminuyendo la sensación de amplitud. Por otro lado, encontramos las edificaciones en hilera, dispuestas paralelamente a las calles contiguas, lo que genera una sensación de orden y continuidad urbana.

Tipologías ventana




Comentarios

abarca 18 de Diciembre de 2025 a las 07:05

El ejercicio de trazados apenas investiga en la repercusión que los mismos tienen en otros muchos elementos de la ciudad. Se debe revisar el enunciado y las clases teóricas y lecturas para profundizar. Igualmente el trabajo de tipologías puede enriquecerse notablemente. Debería aparecer conceptos como parcela y su relación con el tipo.


Accede o regístrate para comentar y puntuar la entrada.